Casale Ristrutturato Le Regine Pianaccio Abetone Mq 200 Tre Livelli Tre Cantine Giardino Mq 350 Terreno e Bosco 7 Ettari
Descrizione
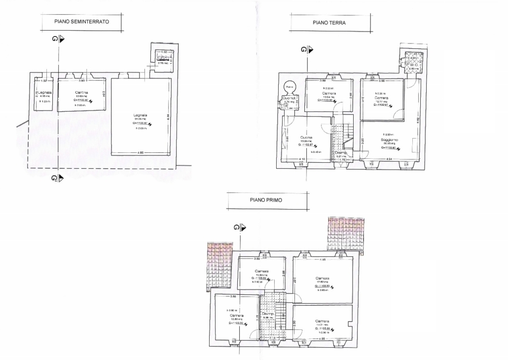
Agenziacioni.com propone in Vendita un Casale Ristrutturato Le Regine Pianaccio Abetone Mq 200 Tre Livelli Tre Cantine Giardino Mq 100 Terreno Bosco 7 Ettari. Prezzo di Vendita € 220.000 Il Complesso Immobiliare è composto da: Terratetto di Mq 200 sviluppato su Tre Livelli, composto da 10 Vani: Al Piano Seminterrato: Due Locali Legnaia Un Locale Cantina adibito ad uso Lavanderia Al Piano Terra: Resede e Giardino di Pertinenza di Circa Mq 350 Ingresso Terratetto Sala attrezzata con Caminetto Sala da pranzo Cucina Tinello attrezzata con Caminetto e Cucina Economica a Legna Camera Matrimoniale Bagno con Finestra attrezzato con Doccia Al Piano Primo:
Video Piano 1°:
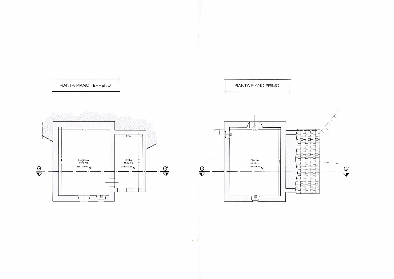
Pianerottolo attrezzato con Stufa a Pellet Quattro Camere Matrimoniali A Fianco del Casale si trova un Secondo Casale da ristrutturare, si tratta di un Terratetto di Mq 110 Sviluppato su Due Livelli, attualmente con Destinazione a Magazzino, trasformabile in civile Abitazione, con un Resede e Giardino di Pertinenza di Mq 370, sviluppato intorno al Fabbricato, sui Quattro Lati. A corredo dei Due Casali si trovano dei Terreni, parzialmente Boschivi e seminativi, per una Superficie Complessiva di 7 Ettari, dei quali Mq 4.500 Edificabili, Per una Volumetria Edificabile pari a MC 6.800; Posizione dei Due Casali. Il complesso immobiliare dei Due Casali è sito nel comune di AbetoneCutigliano (PT), in Via del Pianaccio, Località La Manzina; Il complesso immobiliare è facilmente raggiungibile in quanto la suddetta Via del Pianaccio è completamente asfaltata. Dalla Statale dell'Abetone occorre immettersi, poco prima dell'abitato de "Le Regine", in Via del Pianaccio, e dopo aver oltrepassato la Località "Il Pianaccio", si giunge ai fabbricati in oggetto posti in Località "La Manzina", per una distanza complessiva di Km. 1,6. I Terreni facenti parte del complesso immobiliare dei Due Casali, urbanisticamente ricadono in parte in Zona Agricola e in parte in Zona di Completamento B3, come espresso dagli strumenti urbanistici del Comune di AbetoneCutigliano. La superficie complessiva dei terreni edificabili è pari a circa mq. 4.500, e questo consente la possibilità di edificare un volume pari a circa mc. 6.800, con un massimo di superficie coperta pari a circa mq. 1350. La destinazione prevista dallo strumento urbanistico è ad uso turistico e residenziale.
Caratteristiche
Vedi tutti i dettagli
Dati principali
Superficie e composizione
Piano ed edificio
Spazi esterni e pertinenze
Impianti
Costi
Prestazioni energetiche
Superficie commerciale
| Tipologia | Piano | Superficie | Coeff. | Comm. |
|---|---|---|---|---|
| Casale Ristrutturato | S1/T/1 | 200 m² | 1 | 200 m² |
| Cantina | S1 | 50 m² | 0.3 | 15 m² |
| Giardino | T | 350 m² | 0.3 | 105 m² |
| Terreno - Bosco | S1 | 7000 m² | 0.3 | 2100 m² |
| Casale da Ristrutturare | T/1 | 180 m² | 1 | 180 m² |
| Giardino | T | 350 m² | 0.3 | 105 m² |
| Totale | 2705 m² | |||


