Fondo Monolocale Abetone Centro Mq 60 da Ristrutturare Trasformabile in Civile Abitazione con Terrazzo Mq100 Giardino acquistabile a parte Mq 300
Descrizione
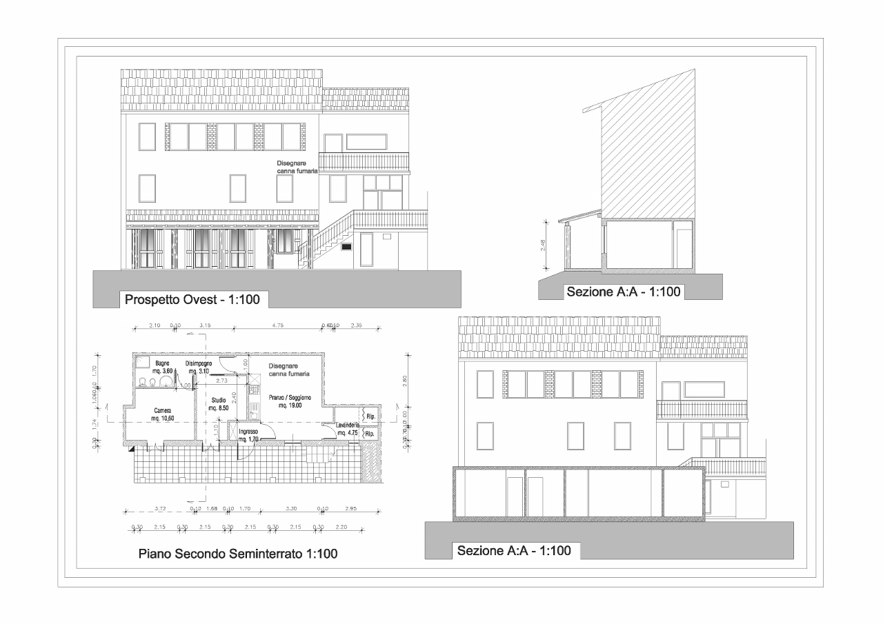
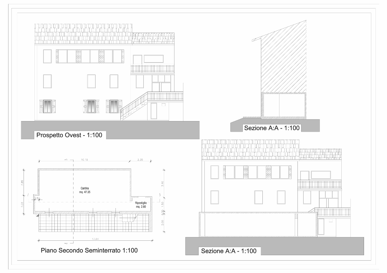
Agenzia Cioni propone in vendita a Abetone, località Serrabassa - Valbuia, un fondo monolocale di 60 mq situato in Via Brennero 560. L’immobile, collocato al piano seminterrato di un edificio costruito nel 1958, si presenta in condizioni da ristrutturare, offrendo così un’interessante opportunità per chi desidera trasformare un fondo in civile abitazione personalizzata. La posizione interna lascia ampi margini per la valorizzazione degli spazi, adattandoli alle esigenze dell'acquirente.
La proprietà si caratterizza per un ampio terrazzo di circa 100 mq, ideale per godere di momenti di tranquillità all’aria aperta e per eventuali aree relax o riunioni all’esterno. Inoltre, è disponibile un giardino esclusivo di 300 mq, acquistabile separatamente, che amplia notevolmente gli spazi verdi privati e consente un utilizzo versatile e piacevole, perfetto per chi apprezza il contatto con la natura.
L’immobile è esposto verso ovest, garantendo una buona luminosità naturale nelle ore pomeridiane. L’edificio non presenta barriere architettoniche e dispone di infissi in vetro e legno, sebbene privi di doppi vetri, e non è dotato di ascensore o portineria. La zona è tranquilla, lontana dal traffico intenso, ma comunque comoda grazie alla vicinanza ai principali servizi e al centro di Abetone, rendendo la soluzione adatta sia come residenza per periodi estivi sia come investimento immobiliare.
Il parcheggio è disponibile nelle aree scoperte comunali situate nelle immediate vicinanze dell’edificio, facilitando l’accesso per residenti e visitatori. La classe energetica dell’immobile è in fase di definizione.
Il prezzo richiesto è di 39.000 euro, trattabile, un’opportunità unica per acquistare un immobile con potenziale di trasformazione e personalizzazione in una delle zone più ambite della provincia di Pistoia. Per maggiori informazioni e per visionare il video illustrativo, è possibile contattare direttamente Agenzia Cioni.
Caratteristiche
Vedi tutti i dettagli
Dati principali
Superficie e composizione
Piano ed edificio
Spazi esterni e pertinenze
Impianti
Costi
Prestazioni energetiche
Superficie commerciale
| Tipologia | Piano | Superficie | Coeff. | Comm. |
|---|---|---|---|---|
| Fondo ad Uso Magazzino | S1 | 60 m² | 1 | 60 m² |
| Totale | 60 m² | |||


