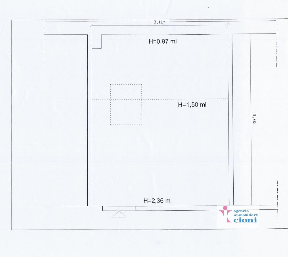
Mansarda Monolocale Le Motte Abetone Mq 12
Agenziacioni.com propone in Vendita,
uno Piccolo Appartamento Monolocale,
ristrutturato di recente,
posto al Terzo piano di un Condominio con ascensore,
Mansarda Monolocale Le Motte Abetone Mq 12;
Prezzo di vendita € 9.900 trattabile.
Posizione della Mansarda Monolocale
La Mansarda Monolocale Le Motte Mq 12,
è ubicato a 150 metri dal centro e dalle piste da sci di Abetone,
peraltro raggiungibili a piedi con pochi passi;
La Via delle Motte è a ridosso del Centro del paese,
la si raggiunge facendo una deviazione,
dalla Strada Statale SS 12 dell’Abetone e del Brennero,
è una piccola strada lunga circa 250 metri, senza sfondo,
immersa nel Verde e contornata da Boschi;
Caratteristiche Generali della Mansarda
La Mansarda Monolocale Mq 12 è posta al terzo Piano,
raggiungibile tramite scale condominiali e con ascensore;
Il Condominio è attrezzato con Locali Cantine ad uso Ripostiglio,
ubicate al Piano Seminterrato ed al Terzo Piano;
La Facciate ed i Balconi condominiali,
sono stati Tinteggiati recentemente,
realizzati con Ottime Finiture;
La Mansarda Monolocale Mq 12,
è cosi composta:
- Accesso alla Mansarda, al Terzo piano,
tramite scale condominiali ed ascensore - Ingresso da pianerottolo a comune
- Ampio Locale luminoso
- Piccolo Bagno attrezzato con Lavandino
- All’interno della Mansarda,
sono stati ricavati quattro Posti letto,
arredati con Letto Matrimoniale ed un Letto a Castello - La Mansarda Monolocale è illuminata con Finestra a Bocca di Lupo
- Al terzo piano si trovano tre Bagni ad uso comune,
tutti attrezzati con Doccia
Riscaldamento della Mansarda
La Mansarda Monolocale Mq 12,
è attrezzato con Impianto di Riscaldamento Centralizzato,
realizzato con Caldaia a Gasolio,
ubicata nel locale Caldaia al Piano terra
con la produzione di Acqua Calda Sanitaria;
Il consumo del Riscaldamento viene quantificato tramite un apposito
contabilizzatore, collegato al termostato ambiente,
presente all’interno del Monolocale;
Parcheggio della Mansarda
La Mansarda Monolocale Mq 12,
è corredata di un posto auto scoperto, assegnato,
ubicato a fianco della facciata del Condominio,
con apposite serigrafie;
Gestione Condominio della Mansarda
Le spese di Condominio della Mansarda Monolocale Mq 12,
sono contenute, ed ammontano ad un importo Annuo di € 150,
le voci di spesa comprendono:
- Amministrazione Condominiale
- Ascensore
- Pulizia Scale
- Illuminazione Esterni e Scale interne
- Manutenzione Ascensore
- Antenna TV Digitale Terrestre
- Antenna TV Satellitare
- Spalatura Neve
- Manutenzione Generale
- #KLME
- #LSF - #Lucca Summer Festival
- #SMI #IRSAPT - Società Metallurgica Italiana
- Abetone - Tuscany
- Abetone - Val di Luce
- Abetone Centro - Loc. Serrabassa - Via Brennero
- Abetone Centro Piazza Piramidi
- Abetone Cutigliano
- Abetone Piste Sci
- Abetone sci
- Abetone.com
- Abetone.com App
- Acquedotto Privato
- Adsl
- Affaccio Panoramico
- Affaccio sul Bosco di Faggi ed Abeti Limitrofo
- Affaccio sul Mare
- Affaccio sul Monte Cimone
- Affaccio Sulla Vallata del Fiume Sestaione
- Affaccio sulle Piste da Sci
- Affreschi Storici
- Agenziacioni.com Tik Tok
- Agenziacionicom Youtube
- Agriturismo
- Agriturismo Pelliccia
- Alpe Tre Potenze
- Altitudine Mt. 1000
- Alto Reno (BO)
- AltoReno - Porretta Terme
- Altoreno - Porretta Terme (BO)
- Anniversario Leonardo da Vinci
- Anniversario Morte Leonardo da Vinci
- Anno Leonardiano
- Appartamento Arredato Nuovo
- Appartamento con Due Ingressi Separati Uno per Piano
- Appartamento posizionato a 100 Metri dalla Piazza di Abetone
- Appartamento Ristrutturato
- Appennino Emiliano
- Area Parcheggio Privata
- Armadietti Portasci Privati
- Armadietto in Legno Boiserie Portasci Privato
- Arredamenti Galli-pievepelago
- Ascensore
- Aspirapolvere attacco Centralizzato
- Ataf Linea n° 28
- Autolinee Toscane Collegamento Stazione Ferroviaria Pistoia
- Autolinee Toscane Servizio Trasporto Pubblico
- Autolinee Toscane Servizio Trasporto Pubblico Pistoia - Abetone
- Autolinee Toscane www.at-bus.it
- Autostrada A11 Firenze Mare
- Azienda Agricola
- Azienda Agricola - Foraggio Legumi Patate
- Azienda Agricola con Podere Seminativo e Bosco
- Azienda Agricola Le Roncacce - Il Melo V. del Paradiso
- Azienda Agricola Olio Extra Vergine di Oliva
- Azienda Agricola Olio Extra Vergine Oliva
- B&B
- B&B Le Antiche Orme - Cà dei Cassettai - LE Tgliole
- Baita - Chalet - Capanna Celtica
- Baita - Stalla - Costruzione in Sasso
- Baita Charlotte
- Balcone
- Banche Data Center Rifredi
- Bar
- Barbecue
- Basculante Motorizzato
- BeB - Bed and Breakfast
- BedandBreakfast - BeB
- Boiler Elettrico
- Borgo Antico
- Borgo di Case in Sasso - Ruderi
- Borgo Storico Case in Sasso
- Bosco
- Bosco di Abeti
- Bosco Limitrofo con accesso ai Sentieri del CAI
- Bosco su Tre Lati
- Box Auto
- Brigidini di Lamporecchio
- Caminetto
- Camino
- Campo Da Calcio
- Campo da Tennis
- Canale Youtube Agenziacionicom
- Cancello Carrabile Motorizzato
- Cancello Motorizzato Telecomando
- Cantina di Proprietà
- Cantina Ripostiglio
- Casa Coppi - Casa Storica Cantoniera
- Casa Coppi - Val di Luce
- CasaArredo Galli Pievepelago
- Casello Autostrada A1 Incisa Valdarno
- Castagni secolari
- Centro Federale Nazionale Calcio
- Chianti Montalbano
- Chianti Shire
- Chianti Tuscany
- Chiostro
- CimoneSci.it
- Comune Alto Reno
- Comune Figline-Incisa Valdarno
- Condominio
- condominio con ascensore
- Conta Calorie
- Contabilizzatori Conta Calorie
- Contacalorie
- Copertura Terrazza Solarium
- Coverciano
- Cutigliano.com
- Cutigliano.com App
- Danfoss Thermostat - Valvole di Zona Termo-Idrauliche
- Dependance
- Deposito Sci Condominiale
- Deposito Sci Condominiale attrezzato con Armadi Porta Si e Scarponi
- Divano
- Divano Letto con Chaise Longue
- Divano Letto Matrimoniale
- Dogana Nuova
- Dogana Nuova Fiumalbo
- Doganaccia 2000
- Due Bagni
- Due Balconi
- Due Ingressi Indipendenti
- Due Terrazzi
- Dynamo Camp
- Faggeta di Piandinovello
- Femminamorta Parco
- Fibra Ottica
- Fibra Ottica - Adsl
- Fibra Ottica FTTH
- Fibra Ottica Misto Rame
- Firenze Chianti
- Firenze Porta Romana
- Firenze Rifredi
- Firenzuola - SS65
- Fiumalbo
- Fiumalbo - Bellagamba - Montalecchio
- Fiumalbo - La Spianata - Montalecchio
- Fiumalbo Borgo Medioevale
- Fiumalbo Via Bar Alpino
- Fiumalbo.net
- Fiume Lima
- Fiume Rio delle Pozze
- Fiume Serchio
- Fiume Sestaione
- Foce al Giovo - Lago Santo Modenese
- Foce al Giovo Passo
- Fondo Commerciale
- Fondo Commerciale con Canna Fumaria
- Fontana
- Fontana Pompeiana
- Forno a Legna
- Forno a Microonde
- FortedeiMarmi
- Fortedeimarmi.it
- Fronte Lungo Mare Versilia
- Fronte Spiaggia della Versilia
- Funivia Cutigliano - Doganaccia
- Funivia Cutigliano Doganaccia
- Funivia Doganaccia2000.it
- Garage di Proprieta
- Garage Singolo
- Gazebo
- Giardino
- Giardino all'Inglese
- Giardino Condominiale
- Giardino Condominiale Attrezzato
- Giardino di Boboli
- Giardino disposto ai Due Piani
- Giardino Privato
- Giardino Recintato
- Gioconda
- Helvetia Thermae
- Il Troccolo
- Impianti Da Sci Cimone
- Impianti da Sci Cimone SuperSki
- Impianti da Sci Doganaccia 2000
- Impianti da Sci Le Regine Chierroni
- Impianti da Sci Pulicchio
- Impianti da Sci SAF Ovovia
- Impianti da Sci Sant'Anna Pelago
- Impianti da Sci Val di Luce
- Impianti Sci Abetone
- Impianto Allarme Video-Sorveglianza
- Impianto di Allarme
- Impianto di Condizionamento
- Impianto di Irrigazione Automatico
- Impianto di Risalita La Riva
- Impianto di Risalita Selletta
- Impianto di Riscaldamento Autonomo Caldaia Gas GPL (Ttermo-Convettori) e produzione Acqua Calda con Boiler Elettrico
- Impianto di Riscaldamento e Produzione di Acqua Calda Sanitaria Centralizzato con Dispositivi Conta-Calorie e Valvole Termostatiche Danfoss Thermostat
- Impianto Riscaldamento Centralizzato Caldaia Gasolio
- Impianto Riscaldamento Centralizzato con Dispositivi Conta-Calorie
- Impianto Riscaldamento con Accensione da Remoto Termostato Smart
- Impianto Riscaldamento e Produzione Acqua Calda Indipendente Caldaia Gasolio
- Impianto Riscaldamento e Produzione Acqua Calda Sanitaria Centralizzato Gas Metano
- Impianto Riscaldamento e Produzione Acqua Calda Sanitaria Indipendente Caldaia Gas GPL
- Impianto Riscaldamento e Produzione Acqua Calda Sanitaria Indipendente Caldaia Gas Metano
- Impianto Riscaldamento e Produzione Acqua Calda Sanitaria Indipendente Elettrico
- Impianto Riscaldamento Indipendente Caldaia Gas piu Termo-Camino
- Impianto Riscaldamento Indipendente con Stufa Idro a Pellets
- Impianto Riscaldamento Indipendente Sorgenti di Calore Caldaia Gas GPL e Stufa Pellet
- Impianto Riscaldamento Indipendente Termo-Convettori Gas
- Impianto Riscaldamento Produzione Acqua Calda Centralizzato Caldaia Gasolio
- Impianto Riscaldamento Produzione Acqua Calda Indipendente Caldaia Gas GPL
- Impianto Riscaldamento Produzione Acqua Calda Sanitaria Indipendente Caldaia Gasolio
- Impianto Riscaldamento Produzione Acqua Calda Sanitaria Indipendente Gas Metano
- Ingresso Indipendente
- Internet Adsl
- Internet Rete Locale LAN
- Internet Router Wifi Free
- IRSA SMI Campotizzoro
- IRSAPT SMI Campotizzoro
- La Versiliana
- Lago Baccio
- Lago Santo Modenese
- Lago Scaffaiolo
- Lago Scaffaiolo - La Doganaccia
- Lago Turchino
- Lavanderia Comune
- Lavanderia Condominiale
- Lavanderia Interna
- Lavatoio in Sasso
- Lavatrice
- Le Regine Centro
- Le Tagliole - Lago Santo Modenese
- Le Tagliole - Podere e Bosco
- Le Tagliole - Rudere con Terreno e Bosco
- Legnaia
- Leonardo da Vinci
- Limonaia
- Live Video Streaming Abetonecom Agenziacioni.com
- Loc. Bellagamba - Fiumalbo
- Loggia
- Loggia Coperta di Ingresso
- Loggia Ingresso Comune
- Lucca
- Lucca - Mura Urbane
- Lucca Cinema Festival
- Lucca Comics
- Luci Accensione Automatica
- Lungo Mare della Versilia
- Lungomare di Levante
- Maneggio Allevamento Cavalli
- Maneggio con Stalle
- Mansarda Abitabile
- Mansarda Sotto-Tetto Abitabile
- Marina di Massa
- Mastromarco (PT) Club i CanNibali Ciclista Lo Squalo Vincenzo Nibali
- Media Valle del Serchio
- Meteo Webcam Agenziacioni.com
- Meteo WebCam Doganaccia2000.it
- Meteo Webcam Lago Santo Modenese By Rifugio Vittoria
- Montalecchio
- Montalecchio -
- Montalecchio - Bellagamba - Fiumalbo
- Monte Giovo
- Monte Libro Aperto
- Multipass Abetone
- Mura Urbane di Lucca
- Museo Pittura Leonardiano
- Nuova Costruzione
- Nuova Costruzione in Sasso
- Olio IGP
- Olivi
- Ospedale Serristori - Figline Valdarno
- Palestra
- Pannelli Foto-Voltaici
- Pannelli Solari
- Pannelli Solari con Impianto Accumulo Energia Elettrica
- Pannelli Solari Foto-Voltaici con Centrale di Accumulo Energia Elettrica
- Pannelli Solari Foto-Voltaici con Stazione Accumulo Energia Elettrica
- Parcheggio Auto Comunale nelle Vicinanze
- Parcheggio Biciclette Chiuso
- Parcheggio Privato
- Parco Alto Frignano Modenese
- Parco Avventura Doganaccia
- Parco con Bosco
- Parco Giardino con Piscina
- Parco Versiliana
- Parquet Listone Giordano
- Passo della Futa - Firenzuola
- Passo della Raticosa - Firenzuola
- Passo di Annibale
- Pavimentazione in Ceramica
- Pavimentazione in Cotto
- Pavimentazione in Parquet
- Pavimentazione Marmo
- Pavimentazione Moquette
- Pescia Porta Fiorentina
- Piccolo Condominio
- Pineta Versiliana
- Piscina
- Piscina Olimpionica
- Pista da Sci La Riva
- Pista da Sci Le Regine Chierroni
- Pista da Sci Selletta
- Piste da Sci Abetone
- Piste Da Sci Campi Scuola
- Piste da Sci Chierroni Fivizzani
- Piste da Sci Cimone
- Piste da Sci Doganaccia
- Piste da Sci Le Polle
- Piste da Sci Monte Cervarola Montecreto
- Piste da Sci Passo delle Radici
- Piste da Sci Pulicchio
- Piste da Sci SAF Ovovia
- Piste da Sci Sant'Anna Pelago
- Piste da Sci Selletta
- Piste da Sci Sestola
- Piste da Sci Val di Luce
- Piste Sci Abetone
- Piste Sci Cimone
- Piste Sci Corno alle Scale
- Piste Sci Fanano
- Piste Sci Poggio Scorzatello - Sant'Anna Pelago
- Piste Sci Sant'Anna Pelago
- Piste Sci Santanna Pelago - Poggio Scorzatello
- Poltrona Letto
- Ponte di Castruccio
- Ponte Sospeso delle Ferriere - Popiglio
- Ponte Sospeso Mammiano
- Pontile di Forte dei Marmi
- Pontile di Marina di Massa
- Pontile di Marina di Pietrasanta
- Pontile Forte dei Marmi
- Porretta Soul Festival
- Porta San Frediano
- Porte di Accesso delle Mura di Lucca
- Portico
- Posti Letto 10
- Posti Letto 2
- Posti Letto 3
- Posti Letto 4
- Posti Letto 5
- Posti Letto 6
- Posti Letto 7
- Posti Letto 8
- Posti Letto12
- Posto Auto Coperto
- Posto Auto Coperto di Proprietà
- Posto Auto di Proprietà
- Posto Auto Scoperto
- Posto Auto Scoperto Assegnato
- Posto Auto Scoperto di Proprietà
- Pozzo Acqua Potabile
- Pozzo Artesiano
- Prato Zona San Paolo
- Predisposizione Antenna Satellitare
- Predisposizione Attacco Acqua nel Garage
- Predisposizione Attacco Lavatrice
- Predisposizione Caminetto
- Predisposizione Impianto Elettrico e di Illuminazione nel Garage
- Predisposizione Impianto Riscaldamento Indipendente
- Predisposizione Punto Camino
- Predisposizione Scarico Acqua nel Garage
- Predisposizione Stufa a Pellet
- PREZZO BASSO
- Prima Colazione
- Produzione Acqua Calda Sanitaria Autonomo Boiler Elettrico
- Produzione Zafferano
- Rampa Riscaldata
- Rete Cellulare 3G/4G presente
- Rifiniture in Stile con Travi a Vista
- Rifugio Alpino Giovo - Lago Santo Modenese
- Rifugio Alpino Vittoria - Lago Santo Modenese
- Rifugio La Terrazza - Val di Luce
- Rifugio Vittoria - Lago Santo Modenese
- Rimessa Attrezzi
- Rimessa Biciclette
- Ripostiglio
- Ripostiglio con Armadietti portasci
- Ripostiglio nel Sottotetto
- Ripostiglio Sci
- Ripostiglio Sottotetto
- Ristorante
- Ristrutturazione con Destinazione Bed and Breakfast
- Ristrutturazione e Divisione interna con Destinazione Bed and Breakfast
- Ronchi
- Rosticceria
- Rudere con Terreno e Bosco
- Sala Comune Relax
- Sala Condominiale
- Sala Condominiale Attrezzata con Caminetto Tavoli e Divani
- Sala Condominiale per Riunioni attrezzata con Caminetto
- Sala Prima Colazione
- SanMarcello-Piteglio
- Santa Maria del Giudice (Lucca)
- Sauna Finlandese
- Sbarra Accesso Parcheggio Automatica
- Sbarra e Cancello Automatici con Telecomando
- Scala Condominiale Esterna Coperta
- Scannafosso accessibile con Due ingressi
- Seggiovia Monte Gomito - Val di Luce
- Seggiovia Poggio Scorzatello - Sant'Anna Pelago
- Seggiovia Quadriposto Le Regine
- Sei Posti Letto
- Serbatoio Acqua Potabile
- Seta Web https://www.setaweb.it/ Trasporti Pubblici Modena
- Seta Web Trasporti Pubblici Modena
- Sisma Bonus
- Skipass Cimone SuperSki
- Sky Ready Satellite
- SMI Campotizzoro
- SMI Rifugi Industriali Campotizzoro
- Solai affrescati
- Solarium
- Soppalco Matrimoniale
- Soppalco nel Soggiorno
- Soppalco Ricavato nel Sotto-Tetto Abitabile
- Soppalco Zona Notte
- Sorgente Acqua Potabile
- Sorgente Acqua privata
- Sorgente Acqua Sotterranea
- Sorgente D'Acqua Autonoma
- Sotto-Tetto Abitabile
- Sottotetto Abitabile
- Spa Resort - Val di Luce
- Spiaggia
- Spogliatoi con Docce
- Spogliatoio Comune Attrezzato
- Spogliatoio Condominiale attrezzato con Armadi Porta Sci
- Stabilimenti Balneari
- Stabilimenti Termali Porretta Terme Altoreno
- Stazione Ferroviaria di Pescia
- Stazione Ferroviaria Firenze Rifredi
- Stazione Ferroviaria Porretta Terme Altoreno
- Strada Ducale - Via del Duca
- Strada Statale 12 dell'Abetone del Brennero
- Stufa a legna
- Stufa a pellet
- SuperBonus 110
- Tartufo bianco
- Taverna
- Taverna con Caminetto
- Telegram Agenziacioni
- Telegram Canale Agenziacioni
- Televisore Schermo Piatto
- Termo Camino
- Termo-Camino con Fan-Coil
- Termostato Ambiente Smart Wi-Fi
- Terrazza Solarium
- Terrazza Solarium Condominiale Affacciata sulle Piste da Sci
- Terrazza Solarium Ricavabile - Progetto Approvato
- Terrazzo abitabile
- Terrazzo Abitabile con Affaccio Panoramico
- Terrazzo con Affaccio sulle Piste da Sci di Abetone.com
- Terrazzo Coperto con Affaccio Panoramico
- Terrazzo Ricavabile - Progetto Approvato
- Terreno Agricolo
- Terreno Agricolo Uliveto
- Terreno Boschivo
- Terreno con alberi da Frutto
- Terreno con Frutteto
- Terreno del Giardino Edificabile
- Terreno Edificabile (Indice 30%)
- Terreno Pascolo
- Tik Tok Agenziacioni.com
- Tik-Tok Agenziacionicom
- TikTok Agenziacioni.com
- TikTok Canale Agenziacioni.com
- TPER Trasporti Pubblici Emilia Romagna Altoreno Terme
- Traforo di San Giuliano
- Traforo San Giuliano Terme Lucca - Pisa
- Trasporti Pubblici Altoreno TPER https://www.tper.it/
- Trasporti Servizio Pubblico Autolinee Toscane
- Tre Bagni
- Tre Balconi
- Tre Piani
- Tre Potenze - Val di Luce
- Tuscany
- TV Digitale Terrestre
- TV Satellitare
- Uffizzi
- Uliveta
- Ulivi
- Uomo Vitruviano
- Val di Lima
- Val di Luce - Piste Sci
- Val di Luce - Rifugio Le Terrazze
- Val di Luce - Spa Resort
- Val di Luce - Valle delle Pozze
- Val di Luce Piste Sci
- ValdiLuce-Abetone
- Valvole Danfoss Thermostat
- Vasca Idromassaggio
- Veranda Chiusa
- Veranda Chiusa e Coperta
- Veranda Coperta
- Versilia
- Versilia Marina di Pietrasanta
- Via del Duca - Strada Ducale - Foce al Giovo
- Via del Paradiso - Il Melo
- Via delle Pozze - Via di Val di Luce
- Via Montalecchio - Fiumalbo
- Viale Carrabile Privato
- Viale di Tigli
- Vicino a Firenze
- Vicino ad un Fiume
- Vicino al Centro ed alla Piazza di Abetone.com
- Vicino Autostrada A1 Firenze Impruneta
- Vicino Autostrada A11 Casello Chiesina Uzzanese
- Vicino Autostrada A11 Fi-Mare
- Vicino Campo Sportivo da Calcio Le Tagliole
- Vicino Centro Abetone
- Vicino Centro Le Regine
- Vicino Fiume Pescia
- Vicino Fiume Sestaione
- Vicino Funivia Cutigliano - Doganaccia
- Vicino General Electric (Nuovo Pignone)
- Vicino Lago Santo
- Vicino Lago Santo Modenese
- Vicino Monghidoro (BO)
- Vicino Officine Galileo
- Vicino Parco Avventura Doganaccia
- Vicino Parco Pubblico Giardino Vivaldi
- Vicino Passo della Futa
- Vicino Passo della Raticosa
- Vicino Piazza Dalmazia
- Vicino Pineta Versiliana
- Vicino Pista da Sci La Riva
- Vicino Pista da Sci Le Regine Chierroni
- Vicino Pista Da Sci Selletta
- Vicino Piste da Sci
- Vicino Piste da Sci Abetone.com
- Vicino Piste da Sci Doganaccia
- Vicino Piste da Sci Le Polle
- Vicino Piste da Sci Pulicchio
- Vicino Piste da Sci SAF Ovovia
- Vicino Piste da Sci Val di Luce
- Vicino Piste Sci Cimonesci.it
- Vicino Piste Sci Fanano - Sestola - Corno alle Scale
- Vicino Ponte Vecchio
- Vicino Sestola - Fanano
- Vicino Spa Resort Val di Luce
- Vicino Stabilimenti Balneari
- Vicino Superstrada FI-PI-LI
- Vicino Svizzera Pesciatina
- Vicino Terme di Porretta Altoreno
- Vicino Terme Montecatini
- Vicino Tramvia Viale Morgagni
- Vicino Versilia Forte dei Marmi
- Vicino Zona Sportiva Fiumalbo Il Lago
- Vicjno Centro Storico Pescia
- Vigneto IGP
- Villa Medicea
- Villas in Tuscany
- Villetta Ristrutturazione e Divisione interna con Destinazione Bed and Breakfast
- Vino IGP
- Vista Mare
- Vista Panoramica
- Vittoria Apuana
- Webcam Abetone
- Webcam Abetone.com
- Webcam Agenziacioni.com
- WebCam Doganaccia2000.it
- Webcam Doganaccia2000.it (https://doganaccia2000.it/doganaccia_webcam_real_time/)
- WebCam Doganaccia2000.it: https://doganaccia2000.it/doganaccia-webcam/
- WebCam Lago Santo Modenese
- WebCam Meteo Lago Santo Modenese Rifugio Vittoria - https://rifugiovittoria.it/stazione-meteo-con-webcam/
- WebCam Video Abetone by Agenziacioni.com
- Wellness Area
- Wifi
- Wifi Free Pistoia Wifi
- Wireless Network
- Wireless WiFi Free
- Youtube Agenziacionicom
- Youtube Canale Agenziacionicom
- Zona Artigianale Campotizzoro
- Zona Bobolino
- Zona Centrale
- Zona Chianti Figline Incisa Valdarno
- Zona Chianti Montalbano
- Zona Collina di Pescia - Uzzano
- Zona Collinare
- Zona Parco dei Daini
- Zona Porta San Frediano
- Zona Prato Ovest
- Zona San Frediano
- Zona Sportiva
- Zona Sportiva Il Lago
Inviaci una richiesta informazioni per avere maggior dettagli relativi all’immobile che stai visualizzando





























































































