Mansarda Quadrilocale Faidello Fiumalbo Mq 100 Piano Secondo
Descrizione
Vendita € 109.000 Affitto Mansarda Quadrilocale Faidello Fiumalbo Mq 100 Piano Secondo Caminetto Impianto di Riscaldamento e Produzione Acqua Calda Indipendente Caldaia Gas Metano Parcheggio Privato.
Agenziacioni.com
propone in Vendita un Appartamento Mansarda molto spazioso,
con Quattro Camere da Letto Matrimoniali,
il quale fa parte di un piccolo Condominio, composto da Dieci Unità Immobiliari,
ubicato a pochi metri dalle Piste da Sci del Pulicchio,
in Località Faidello, la parte del paese ubicata nel Comune di Fiumalbo,
lungo la Via Giardini (già Via Brennero o S.S. 12 dell'Abetone e del Brennero),
Mansarda Quadrilocale Faidello Fiumalbo Mq 100 Piano Secondo Caminetto Parcheggio Privato.
Prezzo di Vendita Euro 109.000 Trattabile.
Posizione della Mansarda Quadrilocale Faidello.
La Mansarda Quadrilocale Faidello Fiumalbo Mq 100 Piano Secondo Caminetto Parcheggio Privato,
pur essendo ubicata e facente parte del Comune di Fiumalbo,
in Località Faidello di Sotto,
si trova ubicata vicino alle Piste da Sci del Pulicchio e della Val di Luce,
collegate tra loro e con tutto il comprensorio di Impianti di Risalita di
Abetone.com
.
La distanza della Mansarda Trilocale Faidello Fiumalbo dalle principali località vicine,
è la seguente:
a 250 metri dalle Piste da Sci del Pulicchio (
Saf Ovovia
)
ad 1 km dal Centro di
Abetone
a 5 km dal Centro di
Fiumalbo
;
Di fronte alla Mansarda Quadrilocale si trova la comoda fermata,
del servizio di trasporto pubblico delle
Autolinee Toscane
,
tramite la Linea n° 54,
la quale collega la Stazione Ferroviaria di Pistoia,
con le località della montagna Pistoiese e con le piste da sci di
Abetone
.
Oltremodo si può arrivare alla Mansarda Quadrilocale dal Versante Modenese,
tramite il servizio di trasporto pubblico della Compagnia
SetaWeb
,
la quale collega la Stazione Ferroviaria di Modena,
con le località dell'Appennino Modenese di Pievepelago, Fiumalbo,
fino alle piste da sci di
Abetone
.
La Località di Faidello si trova a circa 1 km dal Centro di Abetone,
a circa 3 km si puo raggiungere la Località e le Piste da Sci della Val di Luce.
Caratteristiche Generali della Mansarda Quadrilocale.
Il Piccolo Condominio composti di Dieci Unità Immobiliari,
è sviluppato su Due Piani, oltremodo non è dotato di Ascensore.
La Palazzina è dotata di una Ampia area Scoperta,
utilizzata come Parcheggio Auto.
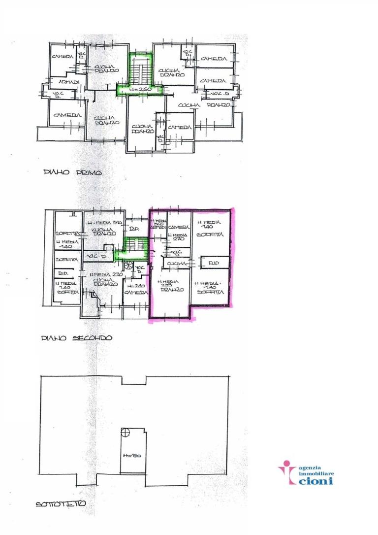
Sviluppo Interno della Mansarda Quadrilocale.
La Mansarda Quadrilocale Faidello Fiumalbo Mq 100,
è composta da:
Al Piano Secondo:
Accesso al Piano Secondo, ed all'Appartamento,
da Pianerottolo a Comune con altre Tre Unità Immobiliari
Ingresso Appartamento nel Disimpegno
Disimpegno attrezzato con Piccolo Guardaroba
Ampio Salone attrezzato con Camino,
ed arredato con due Divani letto matrimoniali
Zona Pranzo ricavata nella Sala
Cucinotto con Finestra,
con Angolo Cottura completamente attrezzato
Dal Lato Sinistro dell'ingresso si accede al Disimpegno della Zona Notte,
arredato con Armadio a muro
Camera Matrimoniale arredata con Quattro Posti letto
Seconda Camera Matrimoniale
Bagno con Finestra, attrezzato con Doccia
Di Fianco alla Sala, tramite una porta di collegamento,
si accede alla Piano Mansarda Sotto-Tetto Abitabile:
La Mansarda Sotto-Tetto è composta da:
Due Ampie Camere Matrimoniali,
arredate ciascuna con Quattro Posti Letto
Le Camere sono illuminate con Finestre Velux
Ripostiglio realizzato tra le Due Camere,
al cui interno è installata la Caldaia,
che alimenta l'impianto di Riscaldamento
Al Piano Terra (all'interno dell'Ingresso Condominiale):
Lungo il Corridoio sono installati degli armadietti Portasci,
Due Armadietti sono di Proprietà della Mansarda Quadrilocale;
La Mansarda Quadrilocale viene Venduta completamente arredata,
come da Foto e Video pubblicati in questo Articolo.
Climatizzazione della Mansarda Quadrilocale Faidello Fiumalbo
La Mansarda Quadrilocale è dotata di Impianto di Riscaldamento Autonomo,
e produzione di Acqua Calda Sanitaria,
realizzato con una Caldaia alimentata con Gas Metano.
Gestione Spese Comuni della Mansarda Quadrilocale Faidello
Date le piccole dimensioni del Condominio,
le spese di manutenzione e mantenimento,
sono esigue e contenute;
L'Importo Annuo delle Spese Condominiali della Mansarda Quadrilocale Mq 100,
è calcolata per un importo di Euro 350.
Le Voci di Spesa dei Servizi Condominiali sono le seguenti:
Pulizia Scale
Illuminazione Scale Interne
Luci Esterne
Spalatura Neve accesso pedonale
Antenna Tv
Manutenzione Giardino Condominiale


