€ 99.000

Rustici Piteglio Tana-Termini Piastreto Mq 450 Due Fabbricati Garage

Lucca Provincia, LU
450 m² 3 bagni 6 camere
Rustico Vendita Lucca Provincia IM-2026-00630 Rif: 3821

Descrizione

Vendita € 99.000 Rustici Piteglio Tana-Termini Piastreto Mq 450 Due Fabbricati Garage Terreno

Agenziacioni.com propone in Vendita un complesso di Rustici da ristrutturare,

il Rustico Principale di Mq 350 è sviluppato su Tre Piani,

un secondo Rustico di Mq 75, sviluppato su un piano, staccato dal Corpo Principale,

oltre ad un Garage di Mq 30, staccato dai Due fabbricati sopra elencati,

Rustici Piteglio Tana-Termini Piastreto Mq 450 Due Fabbricati Garage Terreno;

Prezzo di Vendita Euro 99.000 Trattabile.

Bonus Economici per la Ristrutturazione dei Rustici Piastreto Tana-Termini

Per Il Gruppo di Rustici di Mq 450 Piteglio Tana Termini Piastreto,

è possibile attuare la Ristrutturazione,

utilizzando tutti i Bonus previsti dal MISE,

dove peraltro è stata verificata al fattibilità di utilizzo del

SuperBonus 110

;

Posizione dei Rustici Piastreto Tana-Termini

Il Gruppo di Rustici Mq 450 Piteglio Tana Termini Piastreto,

è ubicato in Località di

Tana Termini

(PT), ed è posto nel Comune di San Marcello Piteglio;

Il Gruppo di Rustici è posizionato sul fianco di una montagna,

con un affaccio panoramico mozzafiato, sul fiume Lima,

e sulle località storiche di Vico Pancellorum, Lucchio, Limano;

La Località Tana Termini fa parte del Comune di San Marcello Piteglio (PT),

ed è sede di numerose grotte all'interno delle quali vengono effettuate corsi di Speleo-Sub-Diving,

dove peraltro la loro storia è ben dettagliata in

questo Articolo

;

Il Gruppo di Rustici è raggiungibile percorrendo per circa 2 km,

una strada bianca ben tenuta,

deviando, in Località Tana Termini,

dalla Strada principale, la SS 12 dell'Abetone e del Brennero;

La Località di Tana Termini, si distingue per essere la sede,

di due importanti realtà lavorative ed imprenditoriali locali,

la Escavazione degli Inerti è effettuata dalle due

Ditte Storiche

,

denominate Borgognoni, presenti nella zona sin dal 1850;

La Località di Tana Termini è posta a cavallo del confine tra le due province di Pistoia e Lucca,

tra i Due comuni di Bagni di Lucca e San Marcello Piteglio;

A pochi Km dal Gruppo di Rustici, si possono raggiungere le vicine Località di:

Bagni di Lucca ed il suo centro Termale di Acqua Sorgiva Calda

A circa 3 km si trova la Località di Popiglio

a circa 6 km si giunge in Località La Lima,

importante Snodo Viario tra la SS12 dell'Abetone e del Brennero,

e la Sp 66 che collega la Città di Pistoia con le Piste da Sci di

Abetone

Il Rustico è posizionato a 2 km dalla Strada SS 12 dell'Abetone e del Brennero

Caratteristiche Generali dei Rustici Piastreto

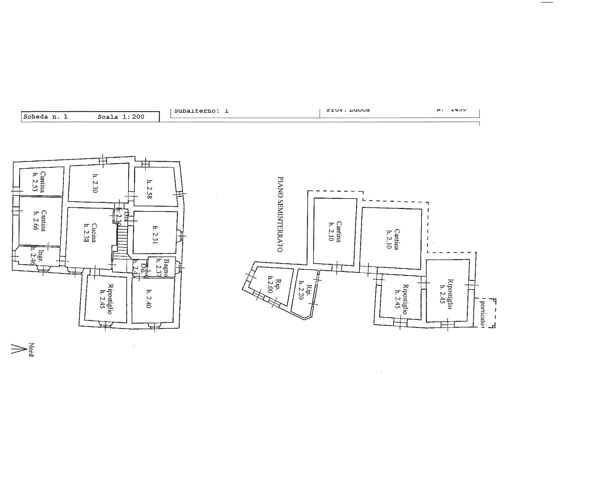
Il Gruppo di Rustici da ristrutturare è composto da Tre Immobili,

il Corpo principale ha una superficie di Mq 350,

è sviluppato su Tre livelli;

Il secondo Immobile è caratterizzato da un Rustico piu piccolo, di Mq 75,

adibito come Annesso terratetto, sviluppato su due Livelli;

a Fianco del Rustico piu piccolo si trova un Garage di Mq 30;

Il Gruppo di Rustici è contornato da una Porzione di terreno di Mq 1.500,

utilizzabile in parte come Giardino,

oltre all'annesso Bosco di Castagni,

sviluppato su una superficie di mq 3.500;

Il Garage è collegato con il Rustico Terra-Tetto piu piccolo.

Caratteristiche

TipologiaRustico
ContrattoVendita
Superficie450 m²
Camere6
Bagni3
Vedi tutti i dettagli

Dati principali

Indirizzo0
ProvinciaLU
DisponibilitàDa concordare
Riferimento interno3821

Superficie e composizione

Superficie450 m²
Camere da letto6
Bagni3

Prestazioni energetiche

Consumo energetico0

Informazioni sul prezzo

Prezzo€ 99.000
Prezzo al m²€ 220 /m²

Efficienza energetica

Consumo energetico0

Planimetria

Foto

Mappa

Immobili correlati

€ 90.000
Rustico Vendita

Rustico Casale TerraTetto Firenzuola Mq 120 Giardino

Firenzuola, Case Simoncelli - Via Montalbano - Firenzuola, FI
120 m² 1 bagno
VENDITA € 90.000 Rustico Casale TerraTetto Firenzuola Case Simoncelli Via Montalbano Mq 120 Tre Livelli Giardino Mq 1000 Cantina Taverna indipendente Magazzino Mq 50 Ristrutturato Serbatoio Gas GPL Rete Gas Metano Presente. Agenziacioni.c…
€ 39.000
Rustico Vendita

Rudere Terratetto Pievepelago Via-Chiusura Mq 190

Pievepelago, Pievepelago Sant'Anna Pelago Sant'Andrea Pelago, MO
190 m² 2 bagni
VENDITA € 39.000 Rudere TerraTetto Pievepelago Via-Chiusura Mq 190 Corte Mq 20 Giardino Mq 60 Due Posti Auto Scoperti Progetto Ristrutturazione e Recupero in fase di approvazione per la realizzazione di Due Soluzioni immobiliari. Agenziac…