Villetta TerraTetto Pianosinatico Via Brennero Mq 90 Cinque Locali Due Livelli Giardino Terrazzato Due Livelli Mq 200 Bosco Mq 1500
Descrizione
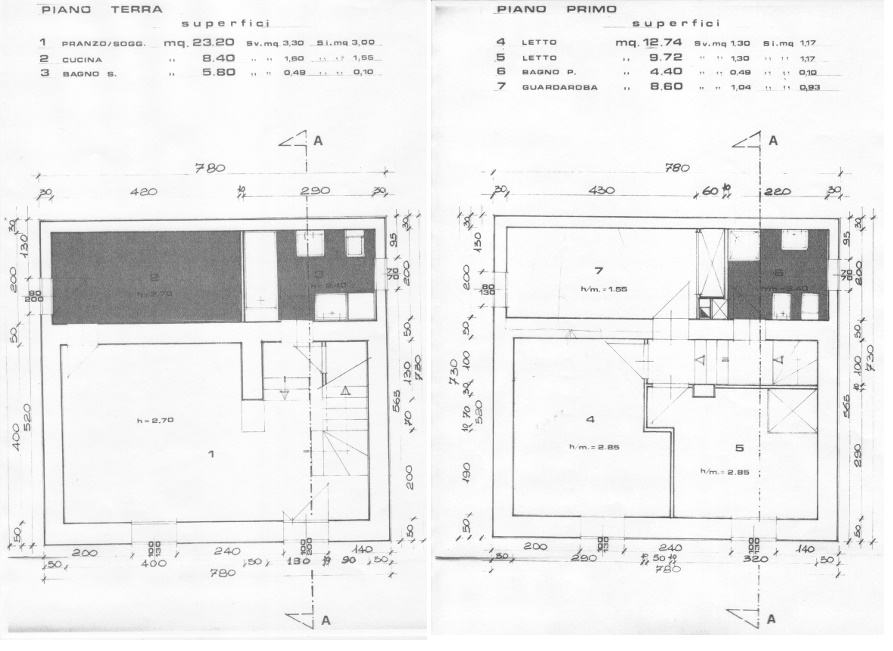
Agenzia Cioni propone in vendita a Pianosinatico, località del comune di Cutigliano in provincia di Pistoia, una villetta terratetto in buono stato e immediatamente abitabile, situata in Via Brennero 135. L'immobile, costruito nel 1980, si sviluppa su due livelli per una superficie totale di circa 90 mq ed è caratterizzato da una distribuzione interna funzionale che comprende cinque locali ben strutturati. La casa si compone di tre camere da letto, due bagni e una cucina abitabile completa di arredi, pronta per essere utilizzata. L'esposizione multipla dell’abitazione garantisce un’ottima luminosità naturale durante tutto l’arco della giornata, assicurando ambienti accoglienti e ariosi.
La proprietà si distingue per gli ampi spazi esterni, offrendo un giardino esclusivo di 200 mq dove è possibile trascorrere piacevoli momenti di relax o pranzi all’aperto in totale riservatezza. Ad arricchire il contesto esterno un terrazzo terrazzato di 100 mq, ideale per organizzare cene o semplicemente godere della quiete circostante. Completa la dotazione una cantina di circa 10 mq che rappresenta un utile spazio di deposito aggiuntivo.
Un elemento particolarmente interessante è il terreno boschivo di 1500 mq annesso alla proprietà, una caratteristica rara che permette di godere di un ambiente naturale incontaminato e di una privacy assoluta, perfetto per chi ama la tranquillità e il contatto diretto con la natura tipica della Toscana.
L’immobile è dotato di impianto di riscaldamento autonomo alimentato a gas GPL con integrazione a pellet e legna, per garantire un riscaldamento efficiente e confortevole durante i mesi più freddi. Gli infissi in legno con doppi vetri contribuiscono all’isolamento termico e acustico della casa, assicurando un buon comfort abitativo. La villetta non presenta barriere architettoniche, è priva di ascensore e non comporta spese condominiali rilevanti.
Questa soluzione abitativa, disponibile da subito, è ideale per chi desidera vivere immerso nel verde della Toscana senza rinunciare alle comodità di una casa confortevole e spaziosa. Il prezzo di vendita è di 139.000 euro trattabili. Per ulteriori dettagli e per organizzare una visita, è possibile contattare l’Agenzia Cioni e visionare il video dedicato tramite il link fornito.
Caratteristiche
Vedi tutti i dettagli
Dati principali
Superficie e composizione
Piano ed edificio
Spazi esterni e pertinenze
Impianti
Costi
Prestazioni energetiche
Superficie commerciale
| Tipologia | Piano | Superficie | Coeff. | Comm. |
|---|---|---|---|---|
| Abitazione | T/1 | 90 m² | 1 | 90 m² |
| Cantina | T | 10 m² | 0.3 | 3 m² |
| Giardino | T | 200 m² | 0.3 | 60 m² |
| Bosco | T | 1500 m² | 0.3 | 450 m² |
| Totale | 603 m² | |||


